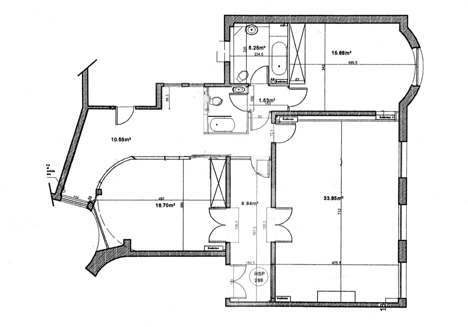
Plan d’appartement en copropriété soumis au mesurage de surface de la loi Carrez
Articles similaires
Le 2ᵉ arrondissement de Paris, cœur vibrant de la capitale, concentre un marché immobilier dynamique : immeubles anciens, appartements familiaux près de Sentier, lofts dans Montorgueil ou bureaux proches de la Bourse. Dans ce contexte, le rôle du notaire à Paris 2ᵉ arrondissement est incontournable. Que vous envisagiez une vente, une acquisition, une succession ou […]
L’assemblée générale de copropriété est un moment où les majorités de vote définissent l’avenir d’un immeuble. C’est lors de cette réunion annuelle des copropriétaires qu’ils prennent les décisions importantes pour l’entretien, la gestion et l’amélioration de leur patrimoine commun. Cependant, pour qu’une décision soit adoptée, elle doit recueillir un certain nombre de voix, selon des règles de […]
Vendre ou de louer un bien immobilier dans le 2e arrondissement de Paris implique de recourir un diagnostiqueur pour réaliser des diagnostics immobiliers obligatoires. Au cœur de la capitale, entre l’Opéra Garnier, la Bourse et le Sentier, votre projet immobilier est soumis à une obligatoire d’information réglementaire. La réalisation des diagnostics immobiliers est une étape non […]
Les statistiques 2025 du marché immobilier parisien intéressent investisseurs, propriétaires et locataires. Ces statistiques permettent de mieux appréhender le marché des ventes et locations d’appartement à Paris. Après une période de turbulences, l’année 2025 marque un tournant avec des tendances qui redéfinissent le paysage immobilier de la capitale française. Cette analyse exhaustive vous présente plus de 117 […]
Paris est un marché immobilier aussi passionnant que complexe où choisir la meilleure agence immobilière est déterminant. Pour vendre ou acheter un bien dans la capitale, s’entourer d’un professionnel de l´immobilier expérimenté, parmi lesquels se classe ULYS Immobilier, est un facteur clé de succès. Mais comment s’y retrouver parmi la multitude d’agences parisiennes ? Dans cet article, nous vous […]
Interkab est un nouveau portail immobilier qui bouscule les sites d’annonces de vente et location d’appartements en France, depuis longtemps restreints à SeLoger, Logic-Immo ou Bien’Ici. Heureusement, Interkab est un acteur ambitieux soutenu par les agents immobiliers indépendants, les réseaux et franchisés, qui modifie cette dynamique. Lancé pour offrir une alternative aux modèles existants, il se présente comme une […]
