Description

Versailles Notre-Dame – [ VENDU ]

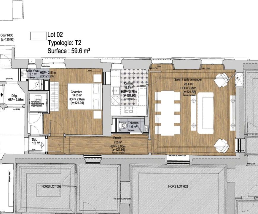
À proximité du château et du Bassin de Neptune, au sein d’un Bel Hôtel Particulier édifié en 1779 par un notable auquel le Duc d’Orléans avait donné le terrain, en cour de rénovation intégrale, Heureux qui comme ULYS propose à la vente un Appartement de 59,6 m² carrez et 3 m. de hauteur sous plafond, situé au Rez-de-chaussé surélevé. Il comprend une entrée distribuant une chambre avec salle d’eau, un toilette séparé et un beau séjour.

Bénéficiant du régime fiscal du Déficit Foncier, l’appartement comme l’immeuble seront entièrement rénovés selon les règles de l’art, offrant au propriétaire un niveau de prestation inégalé dans l’immobilier ancien, ainsi qu’un avantage fiscal dans le cadre d’une mise en location

Calme sur cour. Offrant tout le standing de l’ancien, mais avec la sérénité du neuf. 

Livraison : –

Prix : [ Nous Consulter ],

Nous contacter pout tout renseignement et organiser une visite.

 

Adresse

Ouvrir sur Google Maps

Aperçu

  • Propriété ID 12997
  • Prix Prix : nous contacter
  • Type de propriété
  • Statut de la propriété
  • Pièces 2
  • Salles de bains 1
  • Surface 60 m2
  • Label
  • Chambres 1

Contact

Julien Benyamin

Agent immobilier

06 21 55 02 56
Autres propriétés
Veuillez saisir votre nom !
Veuillez entrer votre numéro de téléphone !
Veuillez saisir une adresse e-mail valide !
Veuillez saisir votre message !

Propriétés similaires

Goncourt – Appartement 2/3 Pièces 43 m² Rénové
[VENDUS]

Goncourt (75010) – [ VENDU ] En Exclusivité, Heureux qui comme ULYS propose à la vente, un Appartement 2/3 Pièces 43,6 m² Carrez sur cour, entièrement Rénové, situé au 3e étage par escalier, d’un immeuble ancien sécurisé. Il comprend une cuisine dinatoire à aménager, distribuant une salle d’eau avec toilette suspendu, un beau séjour et en […]

43.6 m2 Surface
3 Pièces
1 Chambre
1 Salle de bains
Quartier Latin – Appartement Haussmannien 4 Pièces 70 m² à Rafraichir
[VENDUS]

Quartier Latin – [ VENDU ] Heureux qui comme ULYS propose en Exclusivité un Appartement 3/4 Pièces de 70 m² dont 68,39 m² carrez, au 1er étage par ascenseur d’un immeuble bien entretenu en pierre de Paris. Il comprend une entrée qui distribue 2 chambres, dont l’une avec salle de bains privative, un double séjour […]

70 m2 Surface
4 Pièces
3 Chambre
2 Salles de bains
Hotel de Ville – Triplex 5 Pièces 106 m² à Rafraichir
[VENDUS]

Hotel de Ville (75004) – [ VENDU ] Comme une “Maison en ville” en face du BHV Marais, au sein d’un immeuble aux parties communes ravalées, Heureux qui comme ULYS propose à la vente, un Appartement 5 Pièces en Triplex de 106 m² (dont 98 m² loi Carrez), à Rafraichir, situé au 5e étage avec ascenseur, […]

106 m2 Surface
5 Pièces
3 Chambre
2 Salles de bains
Marché Sainte-Catherine – 2/3 Pièces à Rénover
[VENDUS]

Saint-Paul / Marché Sainte-Catherine (75004) –  Heureux qui comme ULYS propose à la vente un Appartement 2/3 Pièces de 48 m² carrez, à Rénover, situé au 1e étage au sein d’un immeuble avec gardien.  Beau potientiel, il comprend une cuisine dinatoire, un séjour et une chambre en enfilade, un dégagement ditribue salle de bains et un toilette séparé. […]

48 m2 Surface
3 Pièces
1 Chambre